2563 31ST AVE W
↓
2563 31st Ave W
Seattle, WA
98119
Lot Size — 7860.00 SF
3 Separate Units
— Single Family Residence, AADU, and DADU
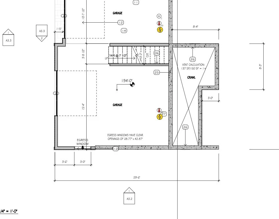
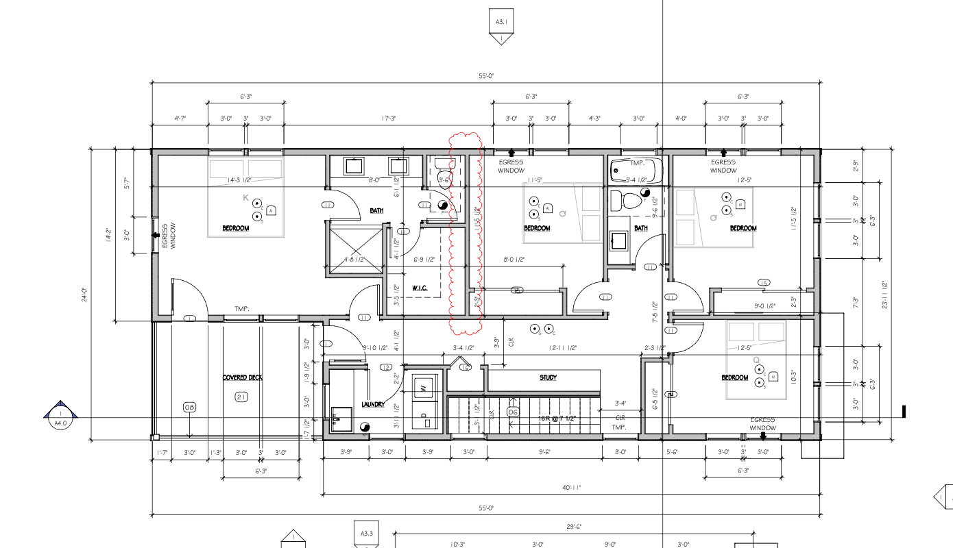
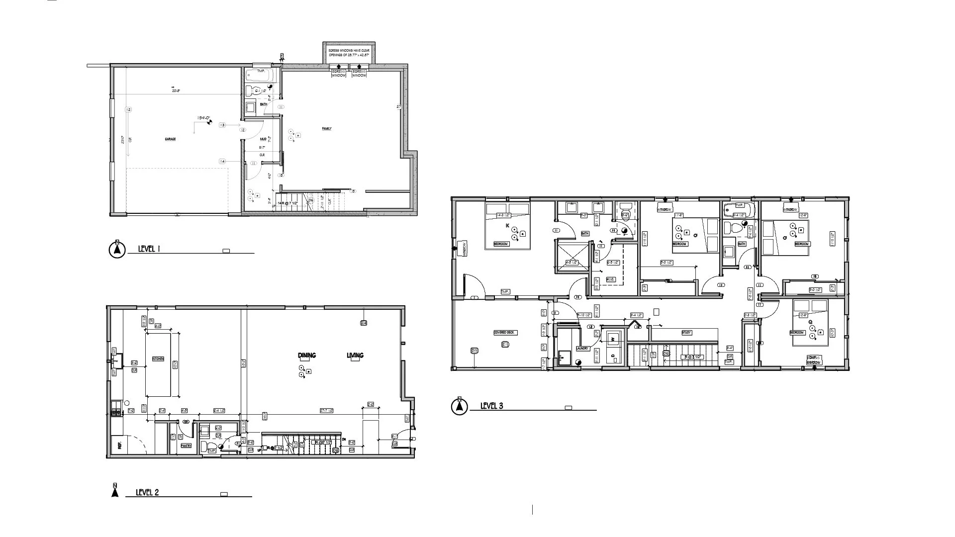
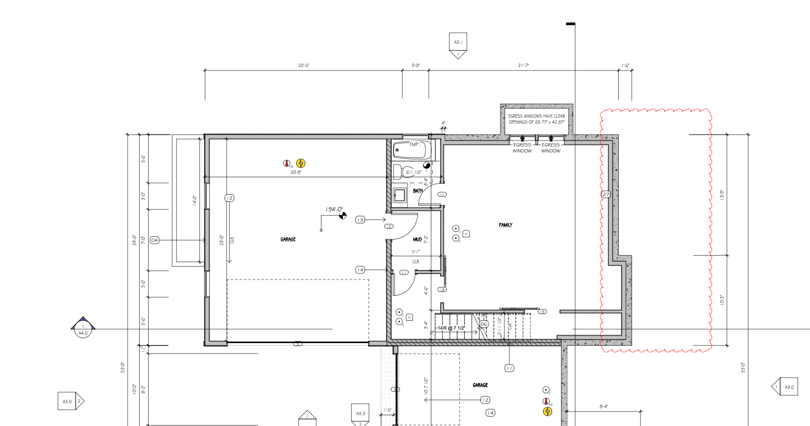
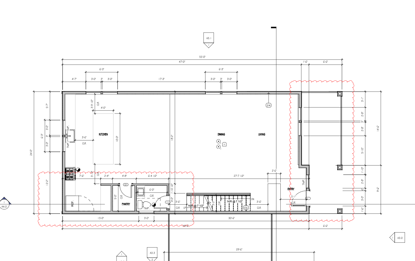
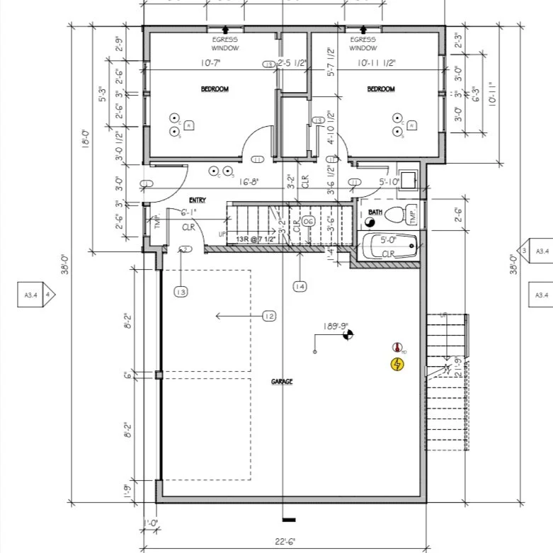
SFR 3031 SF
2563 31st Ave West
4 Bedrooms
3.5 Bath
Family room
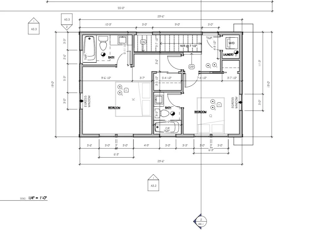
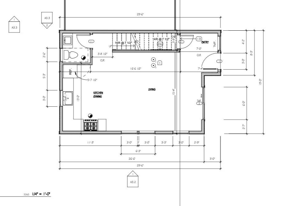
AADU 998 SF
2559 31st Ave West
2 Bedrooms
3 Bath
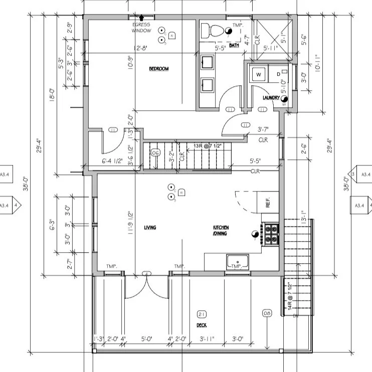
DADU 993 SF
2561 31st Ave West
3 Bedrooms
2 Bath






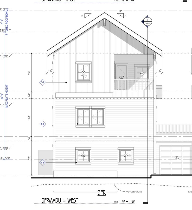
Location
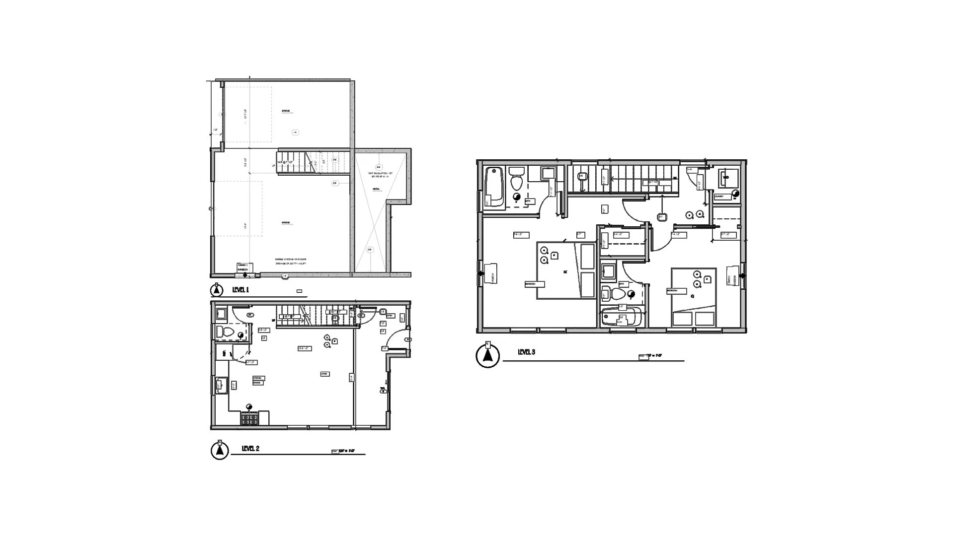
SFR Layout
AADU Layout
DADU Layout